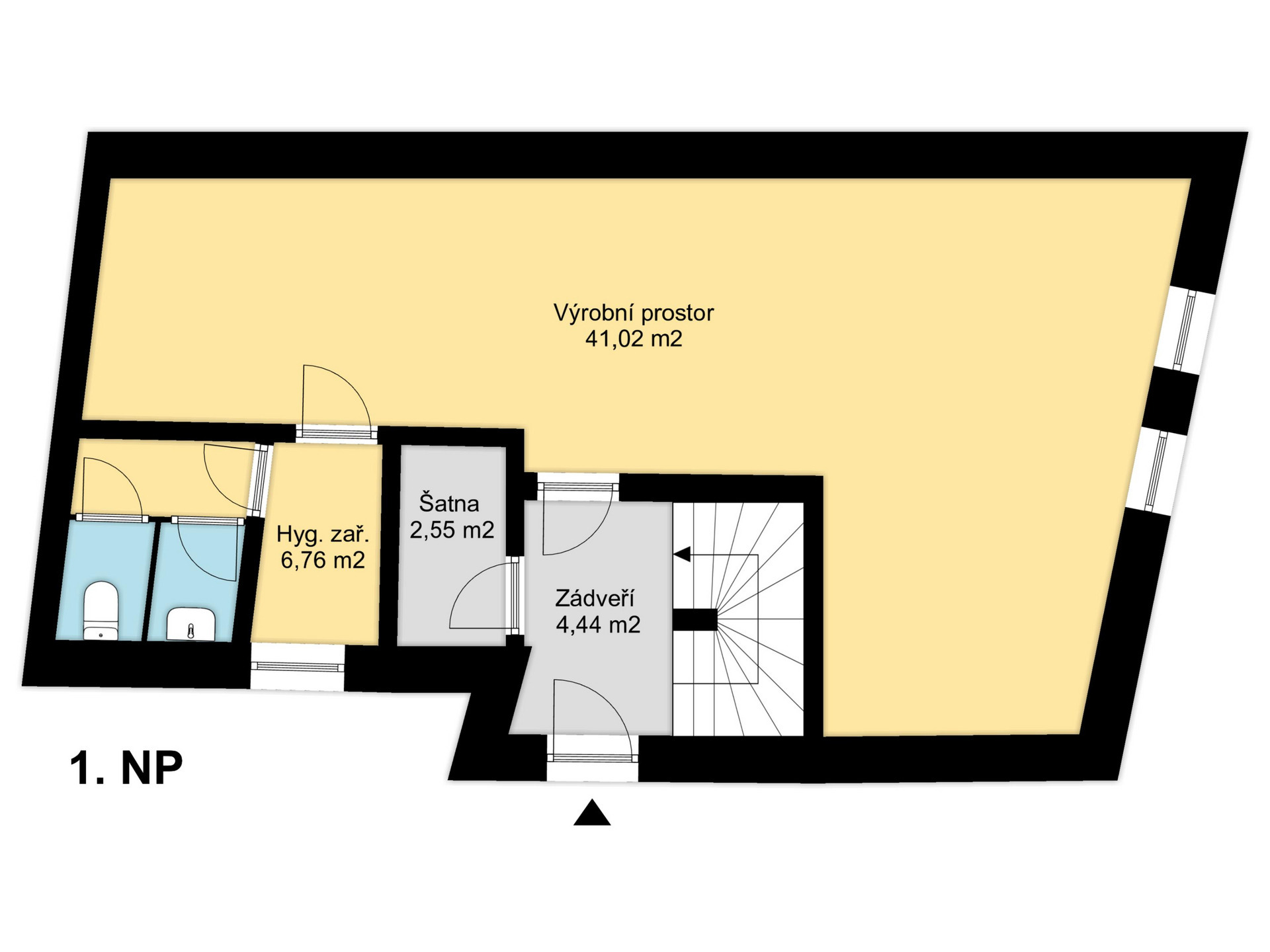
Nabízíme Vám pronájem kompletně vybaveného výrobního prostoru zkolaudovaného jako pekárna v obci Zlonín. Prostor o ploše 55 m² se nachází v přízemí patrového cihlového domu ve velmi dobrém stavu. Vybavení zahrnuje 4 malé a 1 velký nerezový stůl, 6 velkých a 1 malou nástěnnou nerezovou polici, 2 velké lednice, 1 velký mrazák, 1 plynový konvektomat s odsáváním, 1 velký a 1 malý mixér, 4 pojízdné nerezové stojany s plechy, nerezový dvojdřez a malé dřezy s výlevkami. Součástí je také šatna, WC, velká výlevka. Vytápění a ohřev vody je řešeno plynovým kotlem. Prostor je vhodný jako výrobna nebo přípravna, nikoliv jako prodejna. Je vybaven alarmem pro zajištění bezpečnosti. Lokace je výborně dostupná jak autem, tak veřejnou dopravou, v blízkosti se nachází železniční trať, dálnice a zastávky autobusu a MHD. Majitel požaduje nájemné ve výši 35.000 Kč plus úhradu za služby a energie dle typu provozu. Předpokládané náklady jsou 10 - 20.000,-Kč a bude upřesněno po osobní schůzce s pronajímatelem. Majitel požaduje vratnou kauci 35.000 Kč a provize realitní kanceláře činí 35.000 Kč + DPH. Prostor je k dispozici od 1. listopadu 2025 a minimální doba nájmu je stanovena na 12 měsíců. K prostoru je možné pronajmout i bytovou jednotku 2+kk umístěnou ve 2 NP budovy za 15.000 Kč + služby a energie 5.000,-Kč, což poskytuje ideální příležitost pro spojení pracovního a obytného prostoru. Pro více informací nebo prohlídku kontaktujte realitního makléře.
Další informace
35 000 Kč za měsíc
+ poplatky za služby a energie spojené s provozem
|
Martin Hinšt |
| 602 789 166 martin@hinst.cz |






